Unser neues attraktives 5-Familien-Haus mit oberirdischen Garagen im Münchener Westen. An diesem Bauvorhaben wird TÜV SÜD eine Baubegutachtung sowie eine Begutachtung der gebäudetechnischen Ausrüstung im Auftrag des GU durchführen. Alle Angaben ohne Gewähr. Irrtum, Änderungen und Zwischenverkauf bleiben vorbehalten.
Preise & Flächen
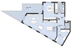
Whg. 01 3-Zimmer EG/UG + Hobbyraum, 2 Bäder, ca. 124,3 m² Nfl., ca. 102,9 m² Wfl., ca. 63 m² Garten, verkauft
Whg. 02 4-Zimmer EG/UG + 2 Hobbyräume, 2 Bäder, ca. 158,7 m² Nfl., ca. 123,6 m² Wfl., ca. 33 m² Garten, verkauft
Whg. 03 3-Zimmer OG mit Balkon, ca. 108,5 m² Nfl., ca. 96,6 m² Wfl., verkauft
Whg. 04 4-Zimmer OG mit Balkon und Loggia, ca. 104,6 m² Nfl., ca. 98,4 m² Wfl., verkauft
Whg. 05 3-Zimmer 2. OG mit großer Dachterrasse, 2 Bäder, ca. 185,88 m² Nfl., ca. 145,77 m² Wfl., verkauft
Die Lage
Aubing ist ein beliebter Stadtteil im Westen von München, der eine perfekte Infrastruktur mit viel Grün und Gemütlichkeit vereint. Mit gerade mal 1400 Einwohner pro km² ist Aubing der Stadtteil mit der geringsten Einwohnerdichte.
Unser Stadhaus liegt nicht weit vom historischen Ortskern. Alle Einkaufsmöglichkeiten des täglichen Bedarfs sowie Schulen und Ärzte können Sie dort finden. Zudem beginnt gleich hinter dem Ortskern das Erholungsgebiet “Aubinger Lohe” mit seinen ausgedehnten Waldflächen. Zur S-Bahnstation Leienfelsstraße sind es nur ca. 500 Meter. Von dort können Sie mit der S4 in weniger als 20 Minuten direkt zum Marienplatz fahren.
Für Familien ist die Wohnsituation in Aubing besonders geeignet: Nur nach wenigen Metern erreicht man die Grundschule und mit dem Fahrrad auch gleich die Realschule und das Gymnasium. Zudem entsteht bis 2019/20 in der Umgebung mit dem Bildungscampus und Sportpark Freiham das größte Schul- und Bildungsprojekt in München. Auch in Planung sind eine neue Grund- und Realschule sowie ein neues Gymnasium und mehrere Sporthallen, ein Schulschwimmbad und eine Freisportanlage.
Das Objekt
Das Projekt bietet Ihnen fünf durchdacht und mit Blick aufs Detail geplante Wohnungen in einer grünen, gewachsenen Gegend.
Wir bieten Ihnen eine exklusive Penthousewohnung mit umlaufender Dachterrasse und 3- bis 4-Zimmerwohnungen mit Balkon, Terrasse. Es erwartet eine großzügige und attraktive Grundrissgestaltung sowie ein sehr guter Ausstattungsstandard.
Gerne berücksichtigen wir vor Baubeginn auch Ihre individuellen Vorstellungen betreffend Grundriss- und Ausstattungsänderungen. Wir wollen Ihre Ansprüche an hohe Wohnqualität erfüllen.
Das Gebäude wird als Effizienzhaus gemäß EnEV errichtet: Die Außenwände werden aus hochwärmedämmendem Ziegelmauerwerk mit integrierter Wärmedämmung aus natürlichem Vulkangestein (Perlit) hergestellt. Als modernes Heizsystem kommt eine Gasheizung in Verbindung mit Solarthermie zur Ausführung. Schall- und Wärmeschutzverglasung sowie eine sinnvolle Konzeption der Haustechnik sorgen für einen niedrigen Energieverbrauch.
Bei Interesse sprechen Sie uns an! (089) 30 90 74 60 oder per eMail.
